建築施工図の作成業務

テクノスペース・クリエイツは現場のあらゆる業務を

豊富な知識と経験で強力にサポートします。


施工図は、設計図を補完し、設計意図を正確に施工に反映させるための図面です。

施工上の不具合を事前に発見し検討を加えるためのツールでもあり、建物を施工する上で非常に重要なものです。

当社では、専門技術者による施工図作成を通して現場をサポートし、よりスムーズな現場の運営をお約束します。

建築施工図・仮設計画図の作成業務

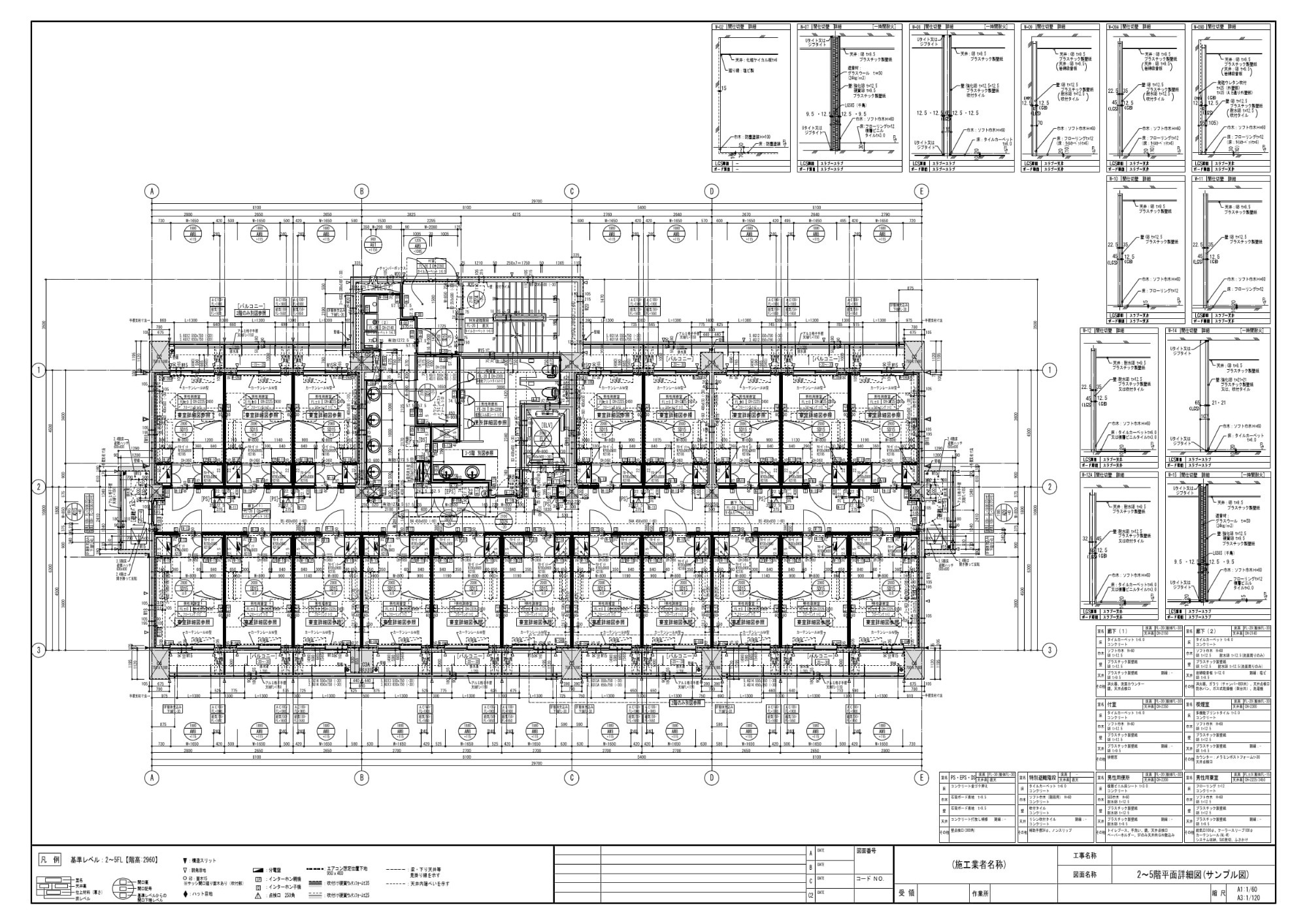
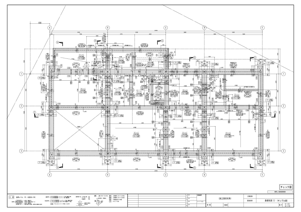
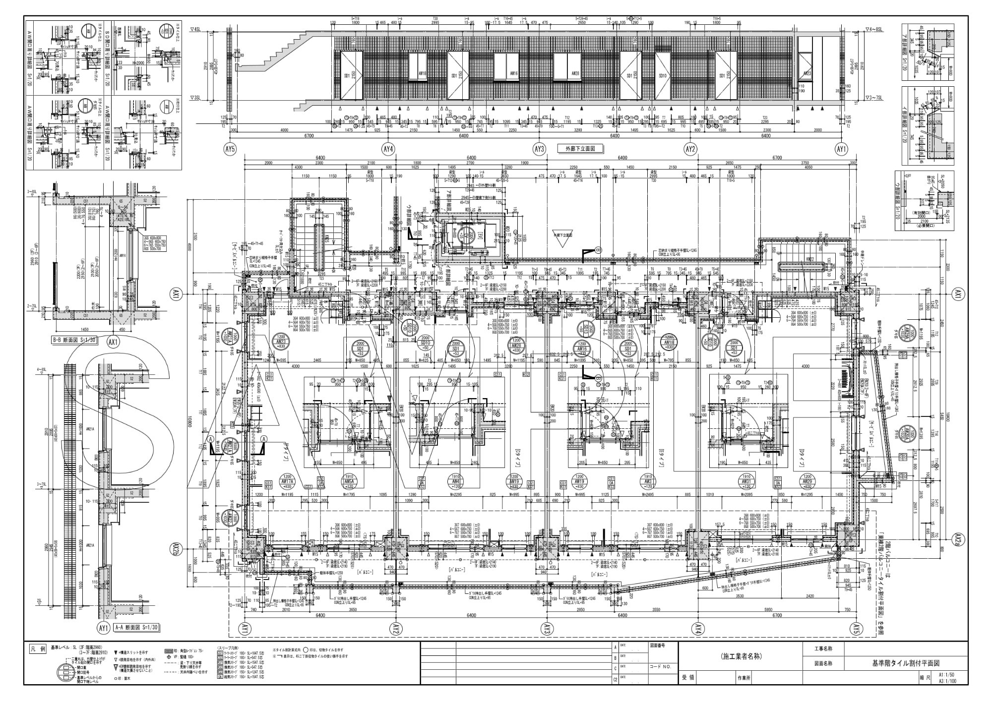
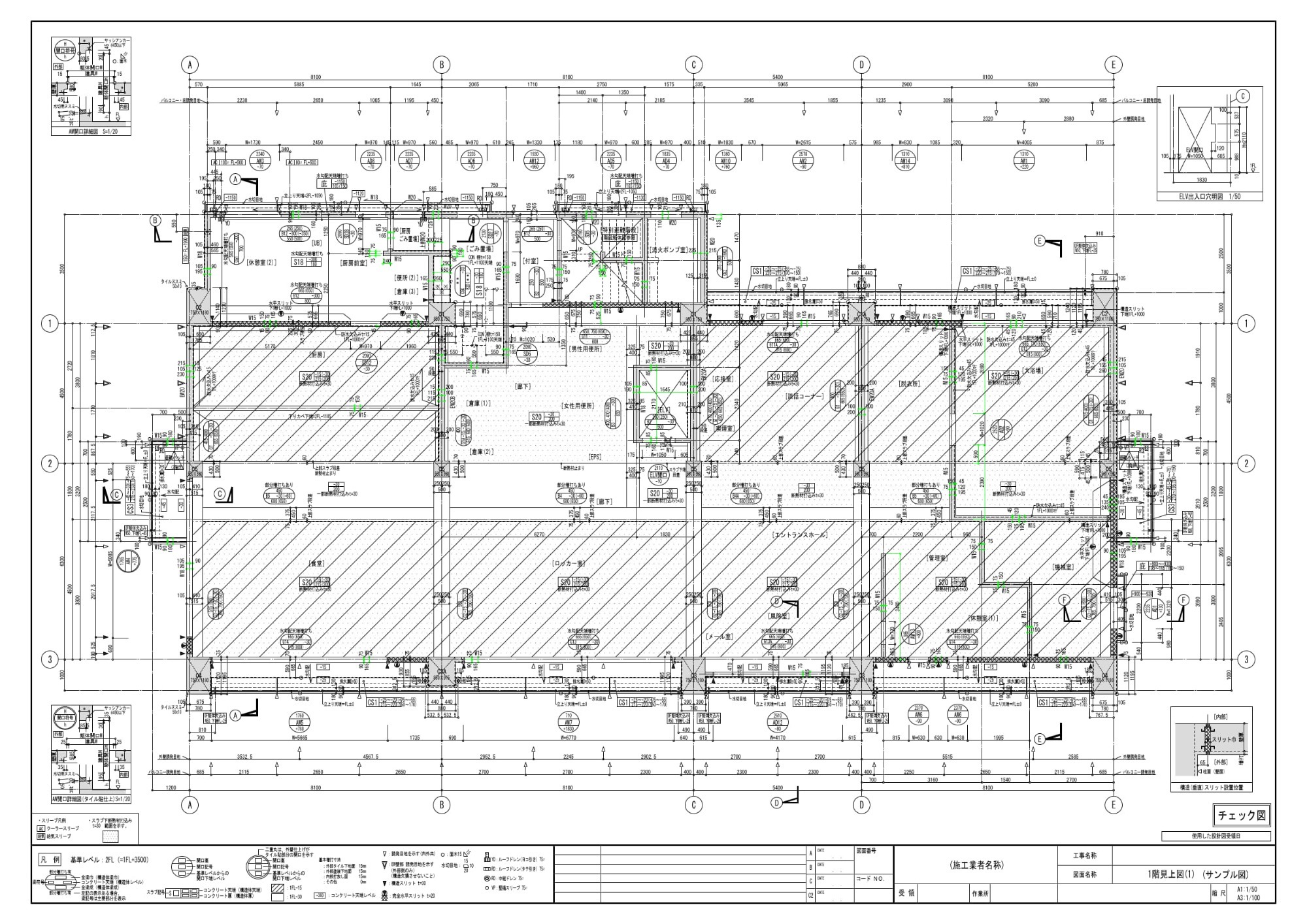
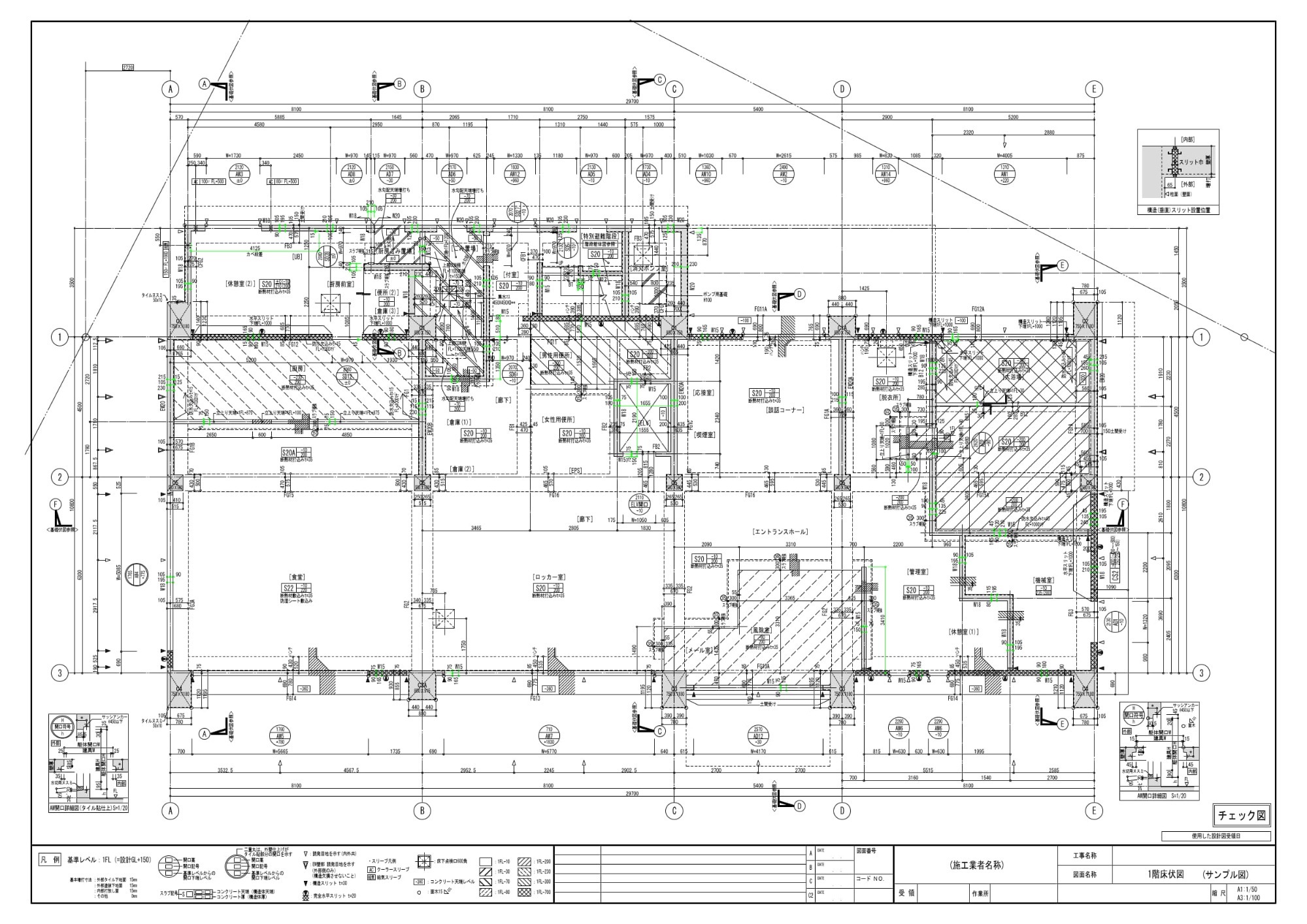
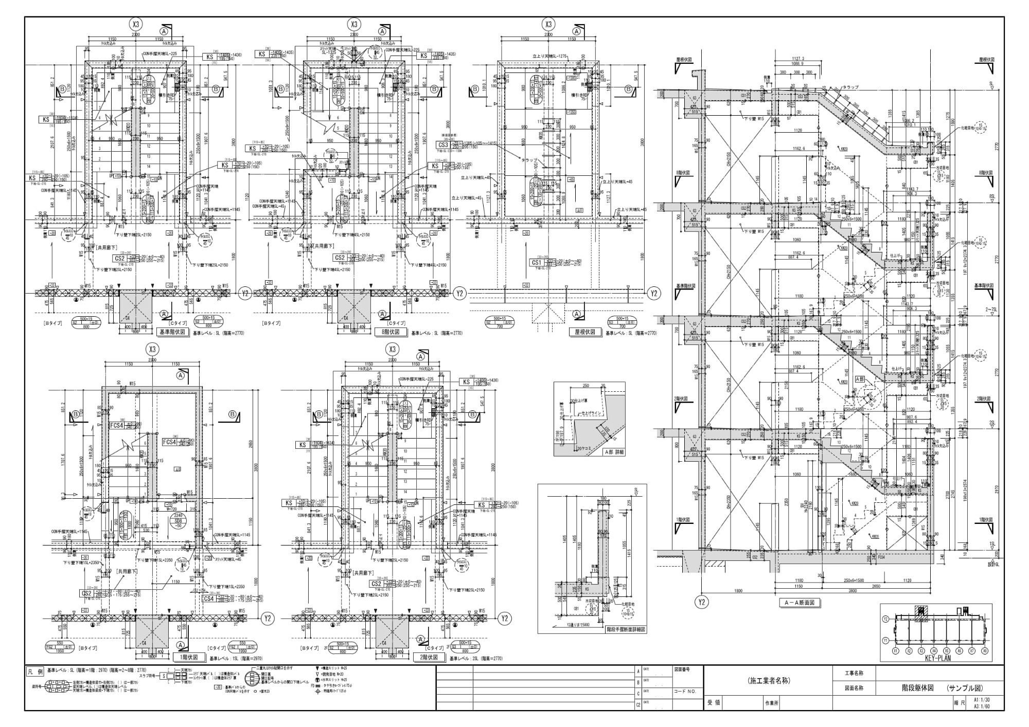
建築施工図(サンプル)

【躯体図】

基礎伏図

1階床伏図

1階見上図

屋上伏図

屋外階段躯体図

【仕上図】

平面詳細図

天井伏図

展開図

タイル割付平面図

【その他】

配筋検討図

建築施工図
仮設計画図
BIM業務
各種申請業務
教育事業
労働派遣業務