仮設計画図の作成業務

テクノスペース・クリエイツは現場のあらゆる業務を豊富な知識と経験で

強力にサポートします。


忙しくて申請処理をまとめる時間がない。

●労基署の指摘がわからない。


仮設計画図は施工をより確実に、より安全に進めるために欠かせません。

当社では、専門技術者による仮設計画図を通して現場をサポートし、

スムーズな現場の運営をお約束します。

建築施工図・仮設計画図の作成業務

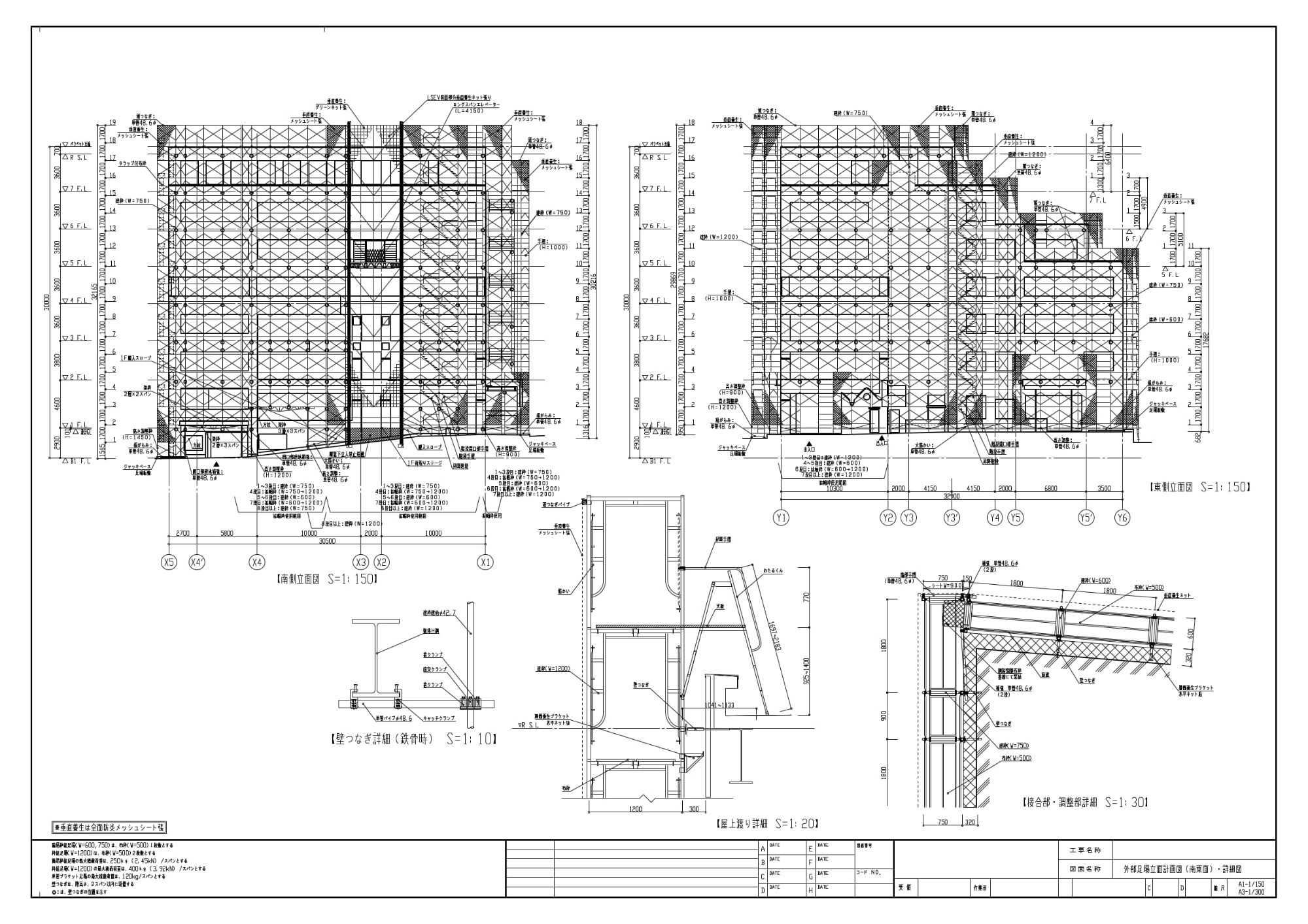
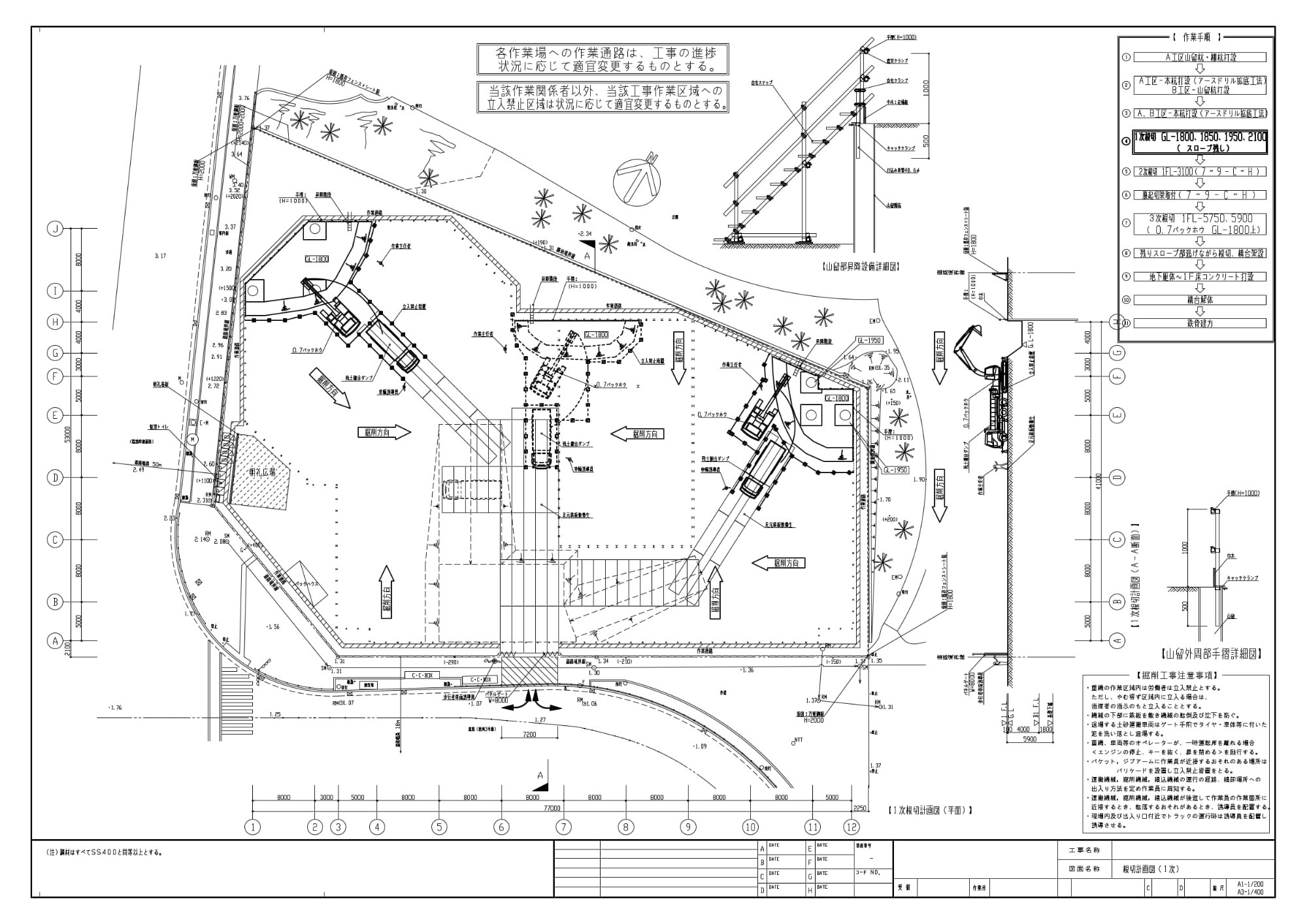
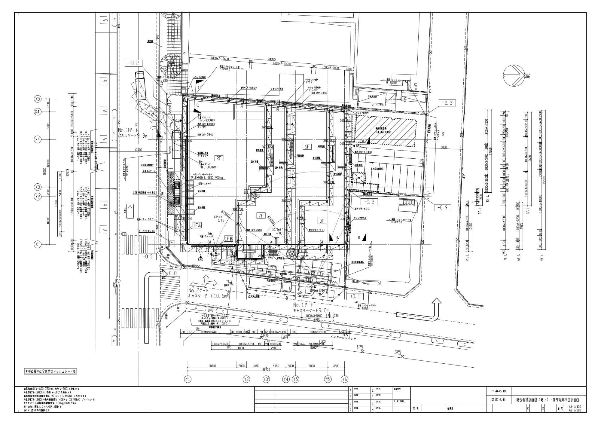
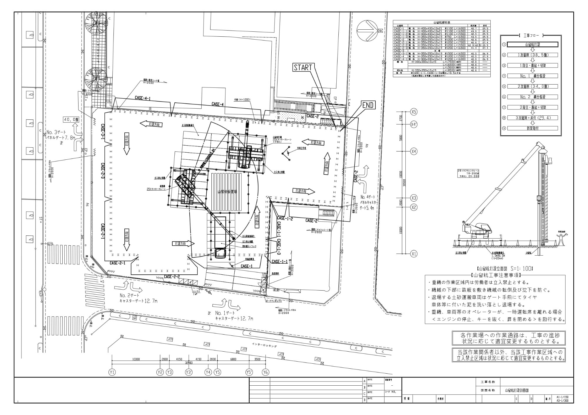
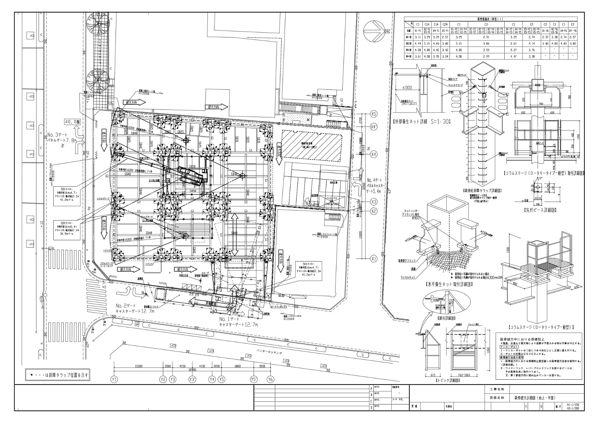
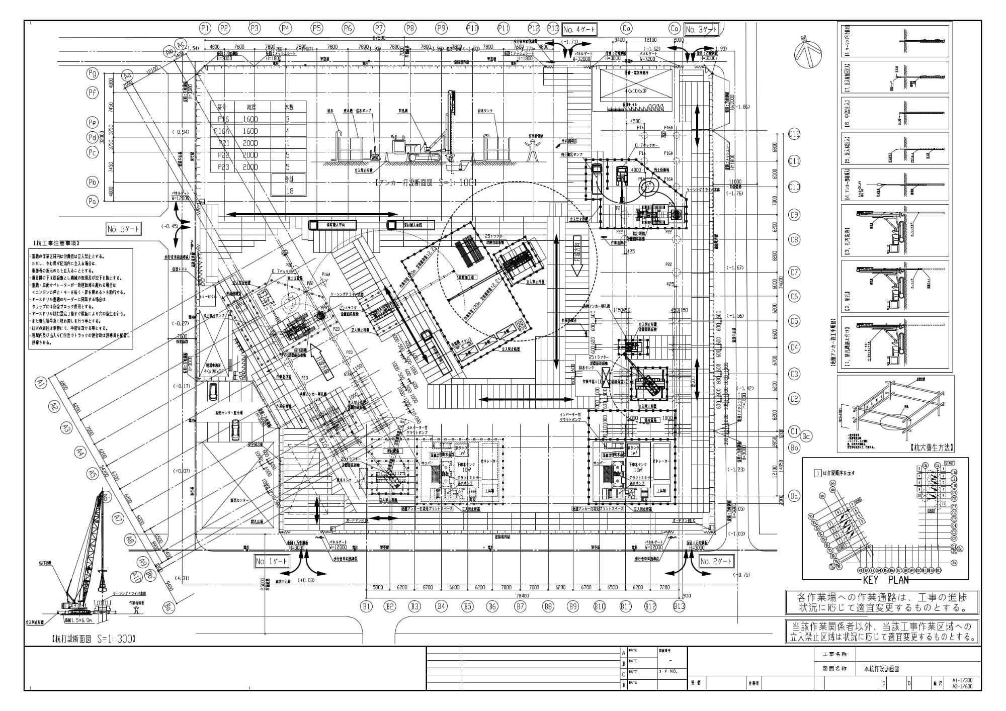
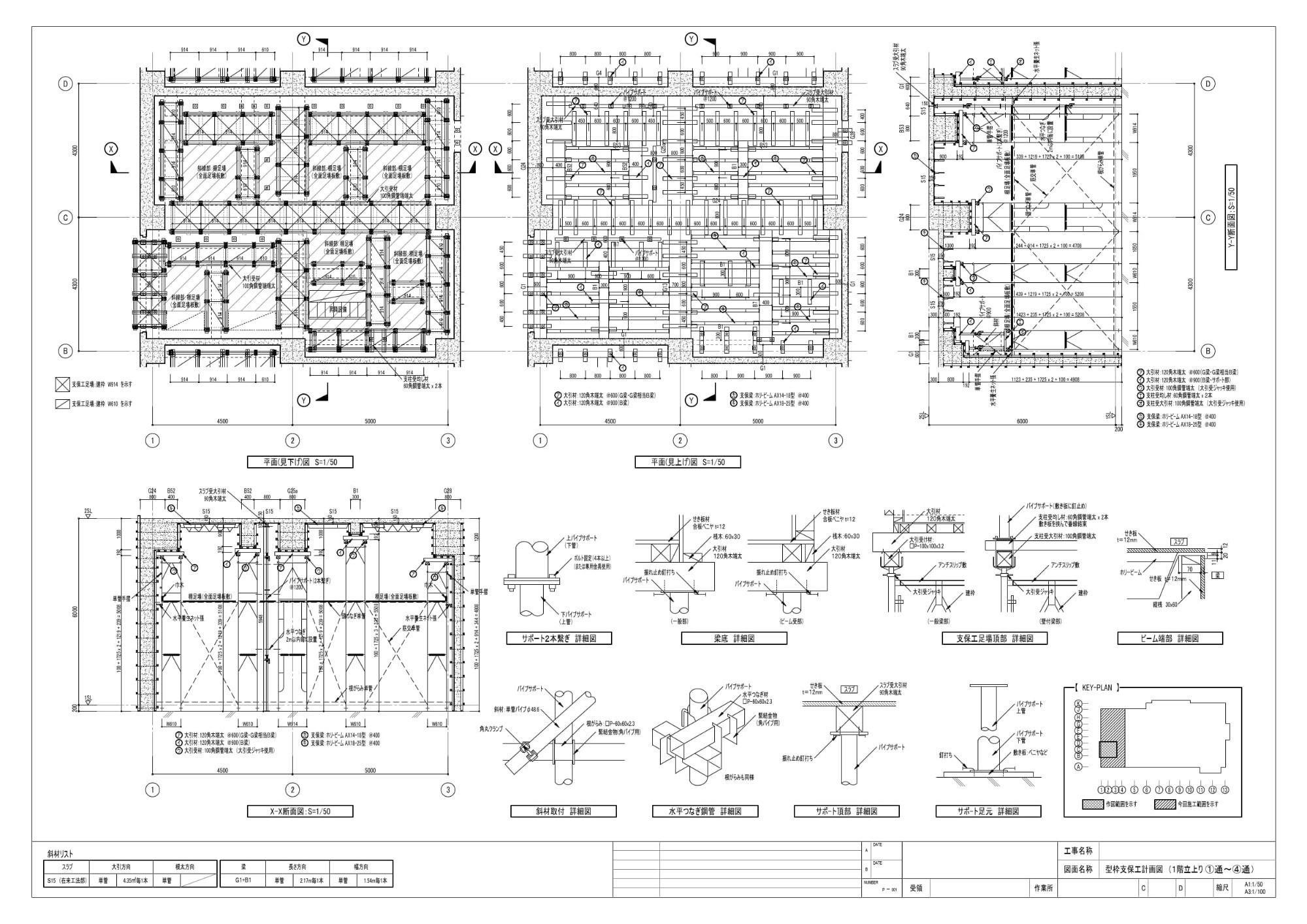
仮設計画図(サンプル)

仮設計画図

総合仮設計画図

足場計画図

型枠支保工計画図

掘削計画図

コンクリート打設計画図

鉄骨建方計画図

山留杭打設計画図

本杭打設計画図

施工ステップ図

建築施工図
仮設計画図
BIM業務
各種申請業務
教育事業
労働派遣業務